Geodeta uprawniony – Mariusz Fit

Mapy z projektem podziału nieruchomości

Mapy z projektem podziału nieruchomości – zgodne z prawem, czytelne w terenie

Wykonuję mapy z projektem podziału nieruchomości – zgodnie z obowiązującymi przepisami prawa geodezyjnego, ustaleniami miejscowych planów zagospodarowania przestrzennego (MPZP) lub decyzji o warunkach zabudowy (WZ).
Dokumentacja ta jest niezbędna do wydania decyzji zatwierdzającej podział przez urząd oraz do wprowadzenia zmian w ewidencji gruntów i księdze wieczystej. Zawsze dbam, by podział był nie tylko zgodny z przepisami, ale także funkcjonalny – z zapewnieniem dostępu do drogi publicznej oraz praktycznego układu działek.

Kiedy wykonuje się mapy z projektem podziału?

Mapy podziałowe wykonuję najczęściej w sytuacjach takich jak:

  • chęć wydzielenia działki pod budowę domu,
  • przygotowanie nieruchomości do sprzedaży lub darowizny,
  • podział majątku rodzinnego lub spadkowego,
  • zniesienie współwłasności przez sąd lub u notariusza,
  • przygotowanie gruntu pod inwestycję drogową, deweloperską lub przemysłową,
  • realizacja podziału zgodnie z MPZP lub decyzją WZ,
  • działania formalne z udziałem gminy, urzędu lub kancelarii notarialnej.

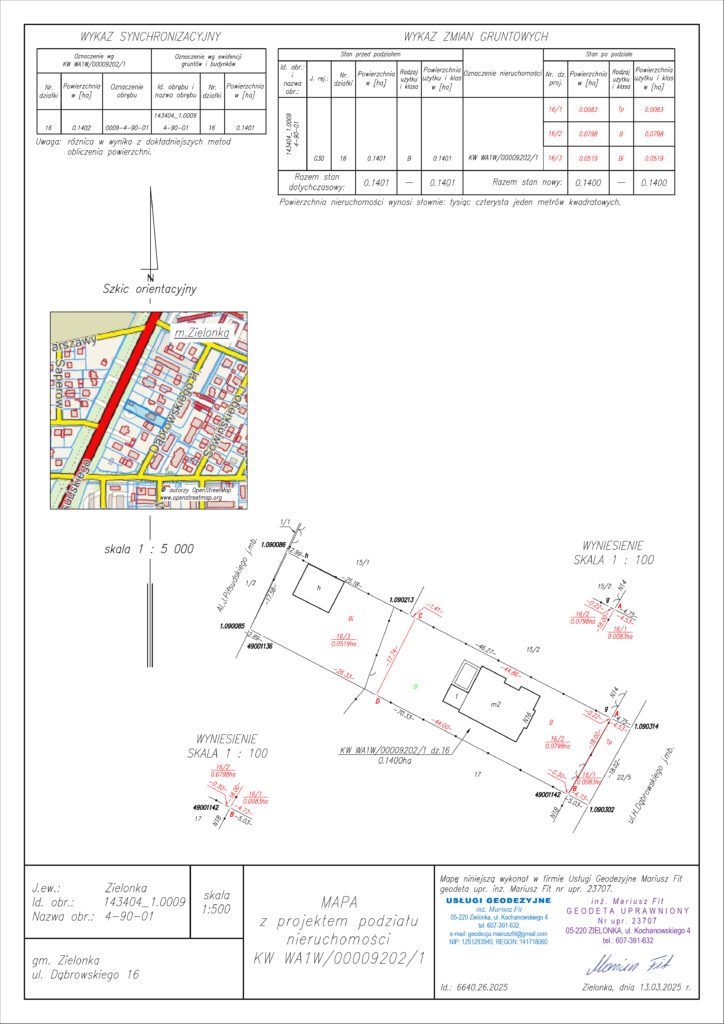
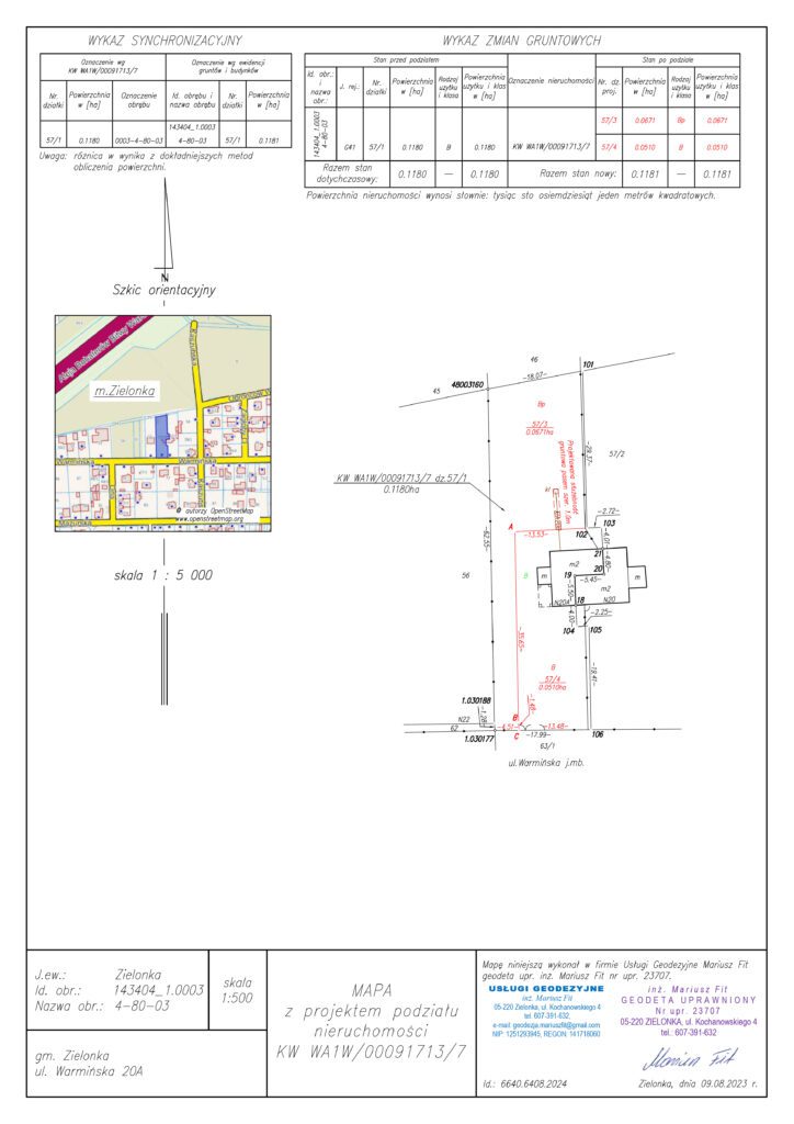
Co zawiera mapa z projektem podziału?

Dokumentacja zawiera:

  • granice działki przed podziałem oraz projektowane linie podziałowe,
  • oznaczenia nowych działek z przypisanymi numerami,
  • powierzchnie nowo wydzielonych działek z dokładnością geodezyjną,
  • dostęp do drogi publicznej lub projektowanej drogi wewnętrznej,
  • elementy infrastruktury technicznej i zagospodarowania,
  • uzasadnienie podziału (zgodność z planem, funkcjonalność),
  • podpis geodety uprawnionego i klauzulę zatwierdzającą operat.

Jak wygląda procedura wykonania podziału?

Proces składa się z kilku etapów:

  1. Analiza stanu prawnego i ustaleń planistycznych (MPZP/WZ).
  2. Zgłoszenie prac geodezyjnych i przeprowadzenie pomiarów w terenie.
  3. Opracowanie projektu podziału (wersja wstępna).
  4. Złożenie dokumentacji do urzędu (do gminy i starostwa).
  5. Po zatwierdzeniu – opracowanie końcowej wersji operatu.
  6. Przekazanie operatu do PZGiK i (opcjonalnie) aktualizacja KW.

W jakiej formie przekazuję dokumentację?

  • mapa z projektem podziału w wersji papierowej z klauzulą urzędową,
  • wersja cyfrowa mapy – PDF, DWG, DXF,
  • operat geodezyjny z wynikami opracowania w formie elektronicznej,
  • dokumenty do przedstawienia u notariusza lub w urzędzie.

Dla kogo jest ta usługa?

 Usługa projektowania podziałów kierowana jest do:

  • właścicieli gruntów chcących uporządkować stan prawny nieruchomości,
  • rodzin planujących darowizny lub podział spadku,
  • spadkobierców przygotowujących się do postępowań majątkowych,
  • inwestorów i deweloperów przygotowujących większe inwestycje,
  • notariuszy i kancelarii prawnych – jako załącznik do aktów,
  • gmin i urzędów – w procedurach podziałów drogowych, planistycznych i administracyjnych.

1.

Kontakt i bezpłatna konsultacja

Skontaktuj się ze mną telefonicznie, mailowo lub przez formularz. Wyjaśnię, jakie działania są potrzebne w Twojej sprawie i zaproponuję najlepsze rozwiązanie. Otrzymasz też orientacyjną wycenę.

2.

Przyjęcie zlecenia i formalności

Po akceptacji oferty przygotowuję niezbędne dokumenty i zgłaszam pracę w odpowiednim ośrodku geodezyjnym. Informuję Cię o przewidywanym czasie realizacji i ewentualnych dokumentach, które należy dostarczyć.

3.

Pomiary w terenie i opracowanie danych

W ustalonym terminie wykonuję pomiary geodezyjne na działce. Następnie opracowuję dokumentację w formie operatu technicznego oraz – w zależności od rodzaju usługi – mapy, szkice, protokoły.

4.

Odbiór dokumentacji

Po zatwierdzeniu operatu przez urząd (jeśli wymagane), gotowe dokumenty przekazuję w umówionej formie – papierowej lub elektronicznej. Otrzymujesz komplet materiałów potrzebnych do dalszych działań: budowy, podziału, uzyskania decyzji.

Wyceń online*

Lorem ipsum dolor sit amet, consectetur adipiscing elit. Ut elit tellus